上尾市 賃貸工場

上尾市領家工場/倉庫

お問い合わせ番号:f11157-123777
賃貸工場
上尾市領家
JR高崎線 北上尾駅 ( 徒歩 48分 )
( 車 11分  3900m )
賃料 110.00万円(税別)
(坪単価:0.60万円)
工業地域に位置する2階建ての工場・倉庫物件のご紹介です。キュービクル設置済みのため、電力を必要とする作業や機械設備の導入にも安心してご利用いただけます。

十分なスペースを確保できるため、製造業や物流拠点、資材置き場など幅広い用途に対応可能。業務の効率化をお考えの企業様にもおすすめです。

お問い合わせをお待ちしております。
管理費 -
保証金
解約引
-
-
敷金
礼金
更新料
10ヶ月
1ヶ月
1ヶ月
建物/専有
面積
603.46m2
(182.54坪)
土地面積 879.96m2
(266.18坪)
築年月 1972年9月
(昭和47年9月)
駐車場 有り無料 所在階 1-2階 地上階数
地下階数
2階
-
構造 鉄骨造
用途地域 工業地域
接道状況 公道 6.00m 
現況 空き
入居/引渡 相談 
契約期間 2年
取引 仲介
物件登録日 2024年6月1日
情報更新日 2025年9月14日
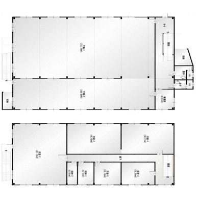
・建物専有面積:1階369.32㎡ 2階234.14㎡
・圏央道『桶川北本IC』まで、4.2km
・保証会社:加入必須
・保証委託料:月額賃料1ヶ月分
・事業用火災保険:加入要
・共益費:月額賃料に含む
・更新料:新賃料の1ヶ月分
・リフォーム履歴
内装:2024年6月
内装全面(床・壁・天井・建具)
外装:2024年6月
外壁、屋根
・1階:スケルトン渡し
(天井高4.5m程、天井クレーン・空調機) 
・2階:事務所仕様に引渡し
(床・壁・天井あり・空調機あり・給湯室あり)
・共有部:トイレ男女別・高圧電力(キュービクルあり)

上尾市領家工場/倉庫 周辺地図

上尾市領家工場/倉庫 のことならお気軽にご相談ください。
テナントショップ上尾(㈱住むトコ不動産)
TEL:048-783-3417
営業時間:10:00-18:00
定休日 :火曜日・水曜日
メールでのお問い合わせ

お電話の場合は「テナントショップを見ました。物件番号は < f11157-123777 > です」と伝えていただくとスムーズにお応えできます。

  • 借りる
  • テナント・貸店舗を探す
  • オフィス・事務所を探す
  • 倉庫・工場を探す
  • 貸土地・借地を探す
  • 居抜き物件
  • 買う
  • 売買物件を探す
  • 依頼する
  • 新着物件!未公開物件!地元に詳しい!
  • 物件リクエスト
検索する
スペース区切りの複合語句検索はできません

  • スマホで物件検索
  • 実績紹介
  • 物件管理
  • 会社概要・アクセス
  • 株式会社住むトコ不動産