さいたま市中央区 賃貸事務所

さいたま市中央区 貸事務所

お問い合わせ番号:f11157-139416
賃貸事務所
さいたま市中央区下落合7
JR埼京線 与野本町駅 ( 徒歩 7分 )
賃料 20.90万円(税込)
(坪単価:1.38万円)
与野本町徒歩7分の貸事務所。お問合せお待ちしております。
管理費 10,000円
保証金
解約引
-
-
敷金
礼金
更新料
3ヶ月
1ヶ月
1ヶ月
建物/専有
面積
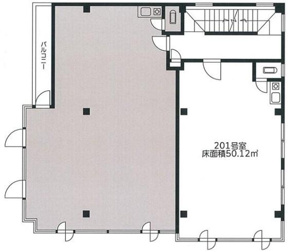
50.12m2
(15.16坪)
土地面積 - 築年月 1997年6月
(平成9年6月)
駐車場 近隣 所在階 2階 地上階数
地下階数
3階
-
構造 鉄骨造
用途地域 第一種住居地域
現況 空き
入居/引渡 相談 
契約期間 3年(更新可能)
取引 仲介
物件登録日 2025年4月8日
情報更新日 2025年4月8日
・スケルトン渡し
・飲食店不可
・更新料:新賃料の1ヶ月分
・保証会社:加入要(指定保証会社あり)
・火災保険:加入要
・鍵交換費用あり
・設備:電気、公営水道、本下水、都市ガス
・エアコン、電灯、トイレは残置物
・電気代は、貸主が検診し、貸主より請求
・1年未満での解約の場合、違約金がかかります
・楽器不可、ペット不可
・土日祝日利用可
・夜間制限なし
・退去時の清掃費用は借主負担
・リフォーム履歴:令和5年11月 エアコン1台交換

さいたま市中央区 貸事務所 周辺地図

さいたま市中央区 貸事務所 のことならお気軽にご相談ください。
テナントショップ上尾(㈱住むトコ不動産)
TEL:048-783-3417
営業時間:10:00-18:00
定休日 :火曜日・水曜日
メールでのお問い合わせ

お電話の場合は「テナントショップを見ました。物件番号は < f11157-139416 > です」と伝えていただくとスムーズにお応えできます。

  • 借りる
  • テナント・貸店舗を探す
  • オフィス・事務所を探す
  • 倉庫・工場を探す
  • 貸土地・借地を探す
  • 居抜き物件
  • 買う
  • 売買物件を探す
  • 依頼する
  • 新着物件!未公開物件!地元に詳しい!
  • 物件リクエスト
検索する
スペース区切りの複合語句検索はできません

  • スマホで物件検索
  • 物件管理
  • 会社概要・アクセス
  • 株式会社住むトコ不動産