さいたま市浦和区 賃貸事務所

さいたま市浦和区貸事務所

お問い合わせ番号:f11157-139730
賃貸事務所
さいたま市浦和区岸町7
JR京浜東北線 浦和駅 ( 徒歩 7分 )
賃料 85.13万円(税込)
(坪単価:1.43万円)
浦和駅徒歩7分の貸事務所。お問合せお待ちしております。
管理費 -
保証金
解約引
-
-
敷金
礼金
更新料
6ヶ月
-
1ヶ月
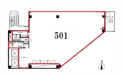
建物/専有
面積
196.80m2
(59.53坪)
土地面積 471.01m2
(142.48坪)
築年月 1993年4月
(平成5年4月)
駐車場 有り有料 所在階 5階 地上階数
地下階数
9階
1階
構造 鉄骨鉄筋コンクリート造(SRC)
用途地域 商業地域
現況 空き
入居/引渡 即時 
契約期間 2年(更新可能)
取引 仲介
物件登録日 2025年4月12日
情報更新日 2025年4月12日
・賃料:851,279円(税込)
・現況:事務所
・引渡し:事務所仕様(OAフロアあり)
・保証会社:加入必須
・火災保険:加入必須
・更新料:新賃料の1ヶ月分
・解約予告:6ヶ月前
・壁面看板:月額11,000円(税込)
設置費用は、借主負担
・機械式駐車場:月額27,500円(税込)敷金1ヶ月 全長:5050m 全高:1550mm 
全幅:1850mm 重量:1700kg
・使用時間制限:ビルの使用および入退室は24時間可能です
・エントランス開閉時間:24時間開錠しております
・共用部清掃:貸主側で実施
(1階エントランス、1階トイレ、共用廊下)
・光ケーブルについて:MDFまで引込済み 貸室までは借主負担にて引込をお願いします
・共聴設備:CATV、地デジ対応済み
・清掃代:敷地内に専用のゴミ捨て場あり 共益費内で日常ゴミは回収 粗大ゴミは借主の実費負担
・鍵交換費用::なし(セキュリティカード使用のため)
・館銘板作成費用:借主負担(ポスト、エントランス、貸室横)
・電気、水道代については、実費負担でお願いします
(管理会社より別途請求)
・その他:専用部内蛍光灯の交換等は実費負担でお願いします

さいたま市浦和区貸事務所 周辺地図

さいたま市浦和区貸事務所 のことならお気軽にご相談ください。
テナントショップ上尾(㈱住むトコ不動産)
TEL:048-783-3417
営業時間:10:00-18:00
定休日 :火曜日・水曜日
メールでのお問い合わせ

お電話の場合は「テナントショップを見ました。物件番号は < f11157-139730 > です」と伝えていただくとスムーズにお応えできます。

  • 借りる
  • テナント・貸店舗を探す
  • オフィス・事務所を探す
  • 倉庫・工場を探す
  • 貸土地・借地を探す
  • 居抜き物件
  • 買う
  • 売買物件を探す
  • 依頼する
  • 新着物件!未公開物件!地元に詳しい!
  • 物件リクエスト
検索する
スペース区切りの複合語句検索はできません

  • スマホで物件検索
  • 物件管理
  • 会社概要・アクセス
  • 株式会社住むトコ不動産