さいたま市大宮区 賃貸店舗一部

さいたま市大宮区上小町 貸店舗・事務所

お問い合わせ番号:f11157-141717
賃貸店舗一部
さいたま市大宮区上小町
JR京浜東北線 大宮駅 ( 徒歩 22分 )
( バス 9分 バス停まで徒歩3分 )
賃料 12.10万円
(坪単価:0.97万円)
1フロア1テナントのテナントです。お問合せお待ちしております。
管理費 -
保証金
解約引
-
-
敷金
礼金
更新料
3ヶ月
1ヶ月
1ヶ月
建物/専有
面積
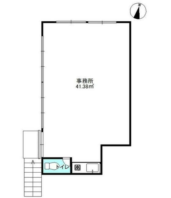
41.38m2
(12.51坪)
土地面積 - 築年月 1962年8月
(昭和37年8月)
駐車場 所在階 2階 地上階数
地下階数
2階
-
構造 木造
現況 空き
入居/引渡 相談 
契約期間 3年(更新可)
取引 仲介
物件登録日 2025年5月11日
情報更新日 2025年5月11日
・更新料:新賃料の1ヶ月分
・更新事務手数料:新賃料の0.275ヶ月分(税込)
・保証会社:加入要(指定保証会社あり)
(初回保証料総賃料の100%更新1年ごと10% 手数料330円)
・火災保険:加入要
・鍵交換費用:22,000円(税込)
・解約予告:6ヶ月前告知
・短期解約違約金:1年半前未満解約は賃料の1ヶ月
・設備:トイレ

さいたま市大宮区上小町 貸店舗・事務所 周辺地図

さいたま市大宮区上小町 貸店舗・事務所 のことならお気軽にご相談ください。
テナントショップ上尾(㈱住むトコ不動産)
TEL:048-783-3417
営業時間:10:00-18:00
定休日 :火曜日・水曜日
メールでのお問い合わせ

お電話の場合は「テナントショップを見ました。物件番号は < f11157-141717 > です」と伝えていただくとスムーズにお応えできます。

  • 借りる
  • テナント・貸店舗を探す
  • オフィス・事務所を探す
  • 倉庫・工場を探す
  • 貸土地・借地を探す
  • 居抜き物件
  • 買う
  • 売買物件を探す
  • 依頼する
  • 新着物件!未公開物件!地元に詳しい!
  • 物件リクエスト
検索する
スペース区切りの複合語句検索はできません

  • スマホで物件検索
  • 物件管理
  • 会社概要・アクセス
  • 株式会社住むトコ不動産