戸田市 賃貸倉庫

戸田市貸倉庫

お問い合わせ番号:f11157-150741
賃貸倉庫
戸田市新曽南
JR埼京線 戸田公園駅 ( 徒歩 19分 )
賃料 1,919.28万円(税込)
(坪単価:0.66万円)
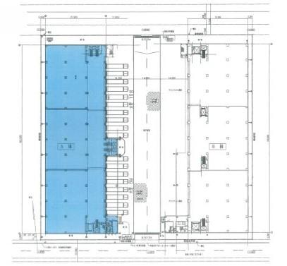
高床式倉庫の3階建て物件です。大型車両の進入が可能で、荷役効率に優れた電動移動ラックを完備しています。荷物用エレベーター1基に加え、垂直搬送機が5基設置されており、多層階でのスムーズな搬送が可能です。内覧も承っておりますので、倉庫運営や物流拠点として最適な物件です。
管理費 -
保証金
解約引
-
-
敷金
礼金
4ヶ月
1ヶ月
建物/専有
面積
9614.95m2
(2908.52坪)
土地面積 12178.65m2
(3684.04坪)
築年月 2000年12月
(平成12年12月)
駐車場 有り無料 所在階 1-3階 地上階数
地下階数
3階
-
構造 鉄骨造
用途地域 工業地域
接道状況 南 
接道状況 北 
現況 使用中
入居/引渡 期日指定 
引渡年月 2026年03月上旬
契約期間 相談
取引 仲介
物件登録日 2025年9月5日
情報更新日 2025年9月5日
・定期借家 
・保証会社:加入要
・火災保険:加入要
・電動移動ラックリース料:992,600円
(4963PL×@200円)
・荷物用エレベーター:1基
・垂直搬送機:5基
・大型車両進入可
・男女別トイレ
・エレベーター
・車寄せスペース
・荷積みスペース

戸田市貸倉庫 周辺地図

戸田市貸倉庫 のことならお気軽にご相談ください。
テナントショップ上尾(㈱住むトコ不動産)
TEL:048-783-3417
営業時間:10:00-18:00
定休日 :火曜日・水曜日
メールでのお問い合わせ

お電話の場合は「テナントショップを見ました。物件番号は < f11157-150741 > です」と伝えていただくとスムーズにお応えできます。

  • 借りる
  • テナント・貸店舗を探す
  • オフィス・事務所を探す
  • 倉庫・工場を探す
  • 貸土地・借地を探す
  • 居抜き物件
  • 買う
  • 売買物件を探す
  • 依頼する
  • 新着物件!未公開物件!地元に詳しい!
  • 物件リクエスト
検索する
スペース区切りの複合語句検索はできません

  • スマホで物件検索
  • 物件管理
  • 会社概要・アクセス
  • 株式会社住むトコ不動産